理想の暮らしにぴったりな平面プラン。
暮らしを変えるリノベーション。間取りそのものを大きく変え理想の暮らしを実現しましょう。
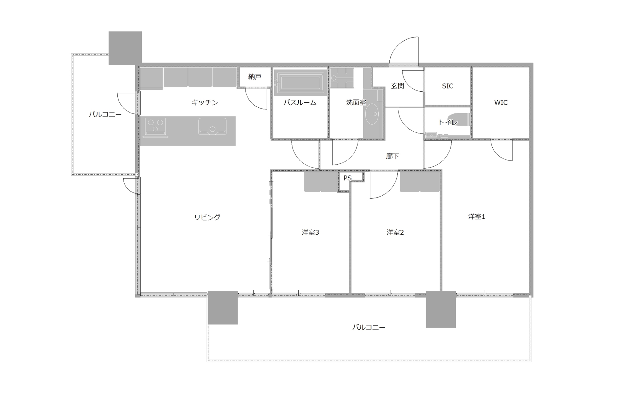
CYCLAではご要望に耳を傾け、理想を実現できるような平面プランをご提案いたします。



case A 家族を愛し、孤独を愛す居住者 : 60 代ご夫婦の場合
ご要望
- ・キッチン、ダイニングを中心に配置し、ご夫婦のスペースを分けたい。
- ・ご主人の趣味は、チェロ演奏、テレビ鑑賞。奥様の趣味は手芸…共通の趣味の知人を招いてサロンとして使用したい。
- ・ご夫婦共通のご友人を招いて、気軽な飲み会を開きたい。
ご提案
- ・ご夫妻の共有スペースでは、オープンキッチンを囲んで、親しいご友人との団欒を可能に。
- ・ご主人のお部屋では、楽器演奏やパソコンでの作業など、自分だけの時間が持てるよう配慮しました。
- ・ご主人のお部屋のインテリアは、ウォルナットを基調にダンディで落ち着いた空間にし、ブルーの壁がアクセントになっています。
- ・奥様のスペースは、寝室部分とサロン部分に分け、木製ルーバー引き戸で仕切りました。
- ・奥様のサロンとダイニングも同じく、木製ルーバー引き戸で仕切りました。
シーンに合わせて使い分けができるようにフレキシブルな空間づくりを実現しました。 - ・奥様のスペースとダイニングのイメージは、フレンチシック。グレイッシュな色調で、大人の女性のための空間を作りました。



